ENOSI

Concurso de proyectos, con intervención de jurado, para la selección de la propuesta y posterior redacción del proyecto y dirección de obra e instalaciones, dirección de ejecución y coordinación de seguridad y salud para la rehabilitación y conversión de dos pabellones militares en escuela oficial de idiomas


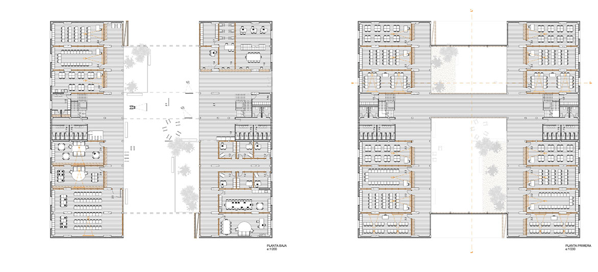
El proyecto se materializa como el diálogo de las dos naves existentes, un nexo de unión que convierte dos edificios aislados en uno mismo, esta unión posee un carácter permeable según la época del año. La solución adoptada se formaliza desde la austeridad formal y constructiva, adaptándose a la existente. El proyecto tiene un papel primordial a la hora de su integración en el conjunto, desde mantener viva la imagen del conjunto, adaptarse a las inclinaciones existentes. Al incorporar vegetación autóctona enfatiza su integración. Gracias a la estrategia seguida en el proyecto, refuerza la identidad propia del lugar. El proyecto se centra en volcar la vida hacia el claustro generado, núcleo vertebrador de la propuesta.

El proyecto se desarrolla en 3 plantas (baja, primera y segunda): en la planta baja se encuentran la totalidad de los espacios administrativos y parte de la zona docente (la mas publica dentro de las necesidades), generando una relación directa con el complejo de Sa Coma. En la planta segunda se encuentra la gran mayoría de aulas normales, todas ellas permiten la correcta distribución de las mesas y sillas de los alumnos y del profesor. Se unifica mediante una pasarela que cruza de nave a nave para facilitar la circulación directa entre ellas. En la planta segunda se ubican las aulas pequeñas (15 alumnos). Todas las estancias cuentan con privacidad cuando es necesario, su correcta iluminación y ventilación natural. Gracias a que el proyecto esta concebido desde la modulación y sencillez constructiva, admite ciertas variaciones sin tener que realizar grandes cambios.

Analizadas las necesidades indicadas en los pliegos del concurso, se incorpora como premisa de la propuesta arquitectónica, la voluntad de conservar y recuperar en la mayor medida posible los materiales y elementos constructivos de los edificios existentes, con el fin de optimizar los recursos invertidos en el proyecto, y así, buscar y promover el mayor ahorro posible en el coste de la obra.

Esta premisa origen, unida a la racionalidad de los edificios existentes, lleva a tomar la decisión de conservar la estructura , y gran parte de los elementos constructivos que configuran las fachadas, realizando pequeñas intervenciones de mejora, eliminar la totalidad de las fachadas que se abren al nexo de unión entre los dos volúmenes con el fin de dotar de una funcionalidad adaptada a las necesidades del programa del nuevo edificio.

Esta estrategia de intervención tiene como fin optimizar los elementos estructurales y constructivos del edificio, nos permite generar un ahorro en el presupuesto destinado a partidas tan importantes como la estructura y la cimentación, implicando un abaratamiento de los costes de ejecución de la obra, así como de favorecer la comprensión y puesta en valor de la imagen original del conjunto.

Información del Proyecto
  • Autor: Mcatecnics
  • Constructor:
  • Promotor: Consell de Ibiza
  • Fotografía: volumestudio
  • Situación: Ibiza
  • Fecha: 2019

img

img


img

img





Volver