UNA CABAÑA EN LA CIUDAD

Casa estudio


Nos encontramos en Palma de Mallorca, en el límite entre la ciudad y el bosque. Recibimos el encargo para la construcción de una pequeña casa- estudio en 2017. Al aproximarnos por primera vez al lugar, nos encontramos con casi el último solar de la calle, donde la calle se convierte en camino, un paisaje insólito dentro de la ciudad. La vivienda-estudio trata de puentear las antiguas relaciones rurales con la naturaleza, planteando un nuevo soporte sobre el que establecer todo un conjunto de relaciones nacidas de las incertidumbres del presente.

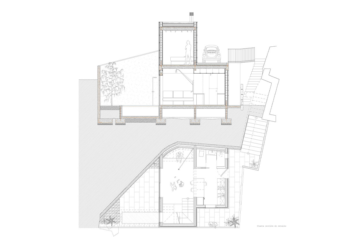
Debido a la poca superficie del solar, surge la idea de realizar una cabaña, un refugio que nos proporciona calor y nos demuestra que podemos vivir con menos. En las necesidades del cliente, era muy importante dotar de aparcamiento a la vivienda, ya que era imposible aparcar en la calle. ¡A veces hay que aparcar en la cubierta!

La vivienda resultante surge para salvar la diferencia de cota entre la calle y el propio solar, asomándose tímidamente la cabaña en el paisaje. Una cabaña de madera, de escala reducida que se apoya sobre un paramento de piedra arenisca (marés). La casa–estudio se lleva a cabo a través de formas simples y rotundas geométricamente hablando, cuenta con 2 espacios muy marcados, una sala de estar–cocina–estudio que se vuelca al patio principal en el que habita el agua, donde en días soleados (muchos a lo largo del año) se proyecta como una extensión propia de la estancia y los reflejos del agua tiñen los interiores del estudio, dejando de ser patio y convirtiéndose en estar. Por último, el dormitorio, por el que se accede a través de una escalera que tiene vocación de desaparecer, dotando al dormitorio de intimidad frente al carácter público de la casa-estudio.


Información del Proyecto
  • Autor: Mcatecnics
  • Constructor: Mallorca Obras S.L.
  • Promotor: Privado
  • Fotografía: volumestudio
  • Situación: Palma de Mallorca, Mallorca.
  • Fecha: 2021

img


img


img


img


img


img


img


img


img





Volver